










Axonometrie mit Kontext
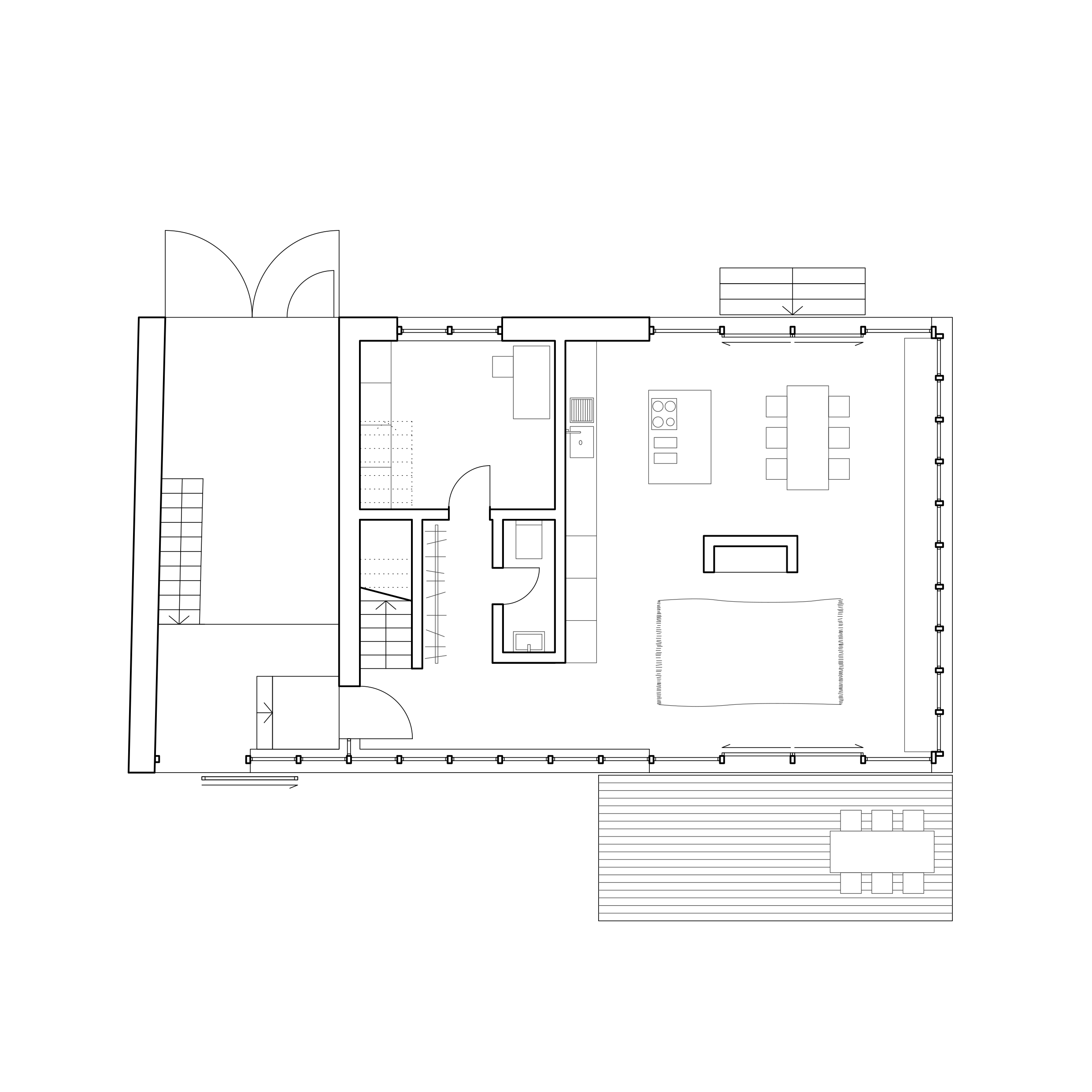
Grundriss Erdgeschoss
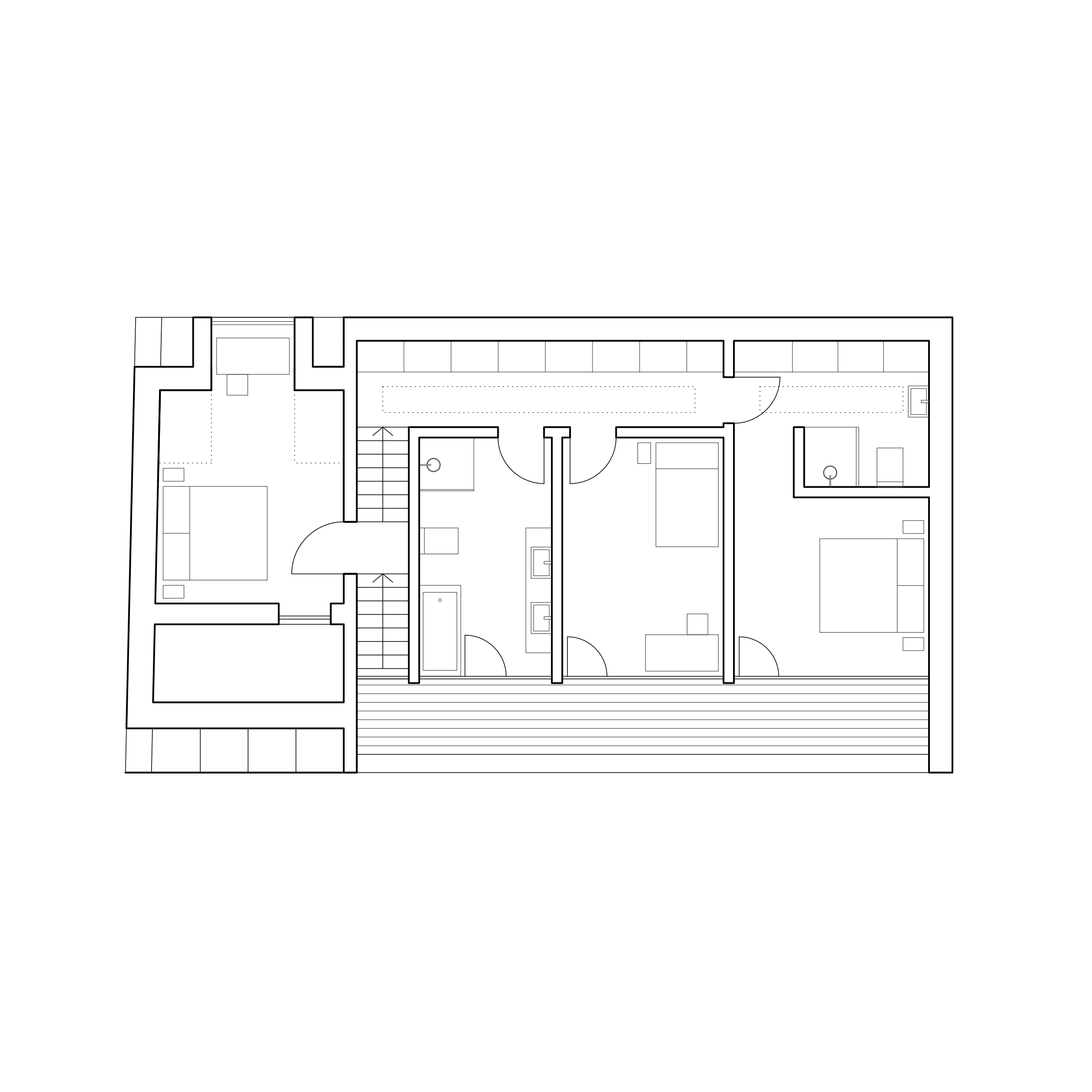
Grundriss Dachgeschoss
Querschnitt
Ansicht Ost
Ansicht Süd
Schnittmodell 1:20
Schnittmodell 1:20
Schnittmodell 1:20
Schnittmodell 1:20
UMBAU SCHEUNE
Eine bestehende Scheune innerhalb eines dichten Dorfkontextes soll zu einem Wohnhaus umgenutzt werden. Nach einer Begehung und Zustandsfeststellung kann der obere Teil der Scheune in Fachwerkbauweise aufgrund der schlechten Bausubstanz nicht erhalten werden. Die Bestandsscheune steht jedoch auf einem Kellergeschoss aus Bruchsteinmauerwerk, das erhalten werden soll.
Um keine Lasten auf das bestehende Mauerwerk einzuleiten werden im Keller neue Stahlbetonstützen eingestellt und der neue Holzbau auf einen „großen Tisch“ aus Stahlbeton gestellt. Auf dem Grundstück gibt es einen Geländeunterschied zwischen dem Hofniveau auf der Nordseite und dem Gartennivaeu auf der Südseite der Scheune.
Ein Teil des ehemaligen Scheunenraums verbindet als doppelgeschossiger Raum, das Hof- und Gartenniveau mit einer kurzen Stahltreppe. Dieser Bereich wird kalt belassen, fungiert als überdachter Eingangsbereich zum Haus und ist vom Hof aus über die zu erhaltenen Scheunentore zugänglich. Hier soll auch der Traktor der Bauherren, die landwirtschaftlich veranlagt sind, Platz finden.
Im Geschoss des Gartenniveaus befinden sich Küche und Esszimmer, sowie das Wohnzimmer, das sich nach Süden über Glasschiebetüren zum Garten öffnet. Im Obergeschoss befinden sich die Schlafzimmer, sowie ein großes Bad, die über einen in die Dachhaut eingeschnittenen Balkon belichtet und verbunden werden. Die Treppe ins Obergeschoss wird durch ein Podest unterbrochen von dem ein weiteres Schlafzimmer auf einem Splitlevel abgeht. Das Zimmer blickt durch eine Gaube auf den Hof, sowie durch ein zweites Fenster in den alten Scheunenraum mit Bruchsteinwand. Ein Blick durch dieses zweite Fenster offenbart die Überlagerung der verschiedenen Zeitschichten, die in dem Projekt miteinander verwoben werden.











Axonometrie mit Kontext
Grundriss Erdgeschoss
Grundriss Dachgeschoss
Querschnitt
Ansicht Ost
Ansicht Süd
Schnittmodell 1:20
Schnittmodell 1:20
Schnittmodell 1:20
Schnittmodell 1:20
UMBAU SCHEUNE
Eine bestehende Scheune innerhalb eines dichten Dorfkontextes soll zu einem Wohnhaus umgenutzt werden. Nach einer Begehung und Zustandsfeststellung kann der obere Teil der Scheune in Fachwerkbauweise aufgrund der schlechten Bausubstanz nicht erhalten werden. Die Bestandsscheune steht jedoch auf einem Kellergeschoss aus Bruchsteinmauerwerk, das erhalten werden soll.
Um keine Lasten auf das bestehende Mauerwerk einzuleiten werden im Keller neue Stahlbetonstützen eingestellt und der neue Holzbau auf einen „großen Tisch“ aus Stahlbeton gestellt. Auf dem Grundstück gibt es einen Geländeunterschied zwischen dem Hofniveau auf der Nordseite und dem Gartennivaeu auf der Südseite der Scheune.
Ein Teil des ehemaligen Scheunenraums verbindet als doppelgeschossiger Raum, das Hof- und Gartenniveau mit einer kurzen Stahltreppe. Dieser Bereich wird kalt belassen, fungiert als überdachter Eingangsbereich zum Haus und ist vom Hof aus über die zu erhaltenen Scheunentore zugänglich. Hier soll auch der Traktor der Bauherren, die landwirtschaftlich veranlagt sind, Platz finden.
Im Geschoss des Gartenniveaus befinden sich Küche und Esszimmer, sowie das Wohnzimmer, das sich nach Süden über Glasschiebetüren zum Garten öffnet. Im Obergeschoss befinden sich die Schlafzimmer, sowie ein großes Bad, die über einen in die Dachhaut eingeschnittenen Balkon belichtet und verbunden werden. Die Treppe ins Obergeschoss wird durch ein Podest unterbrochen von dem ein weiteres Schlafzimmer auf einem Splitlevel abgeht. Das Zimmer blickt durch eine Gaube auf den Hof, sowie durch ein zweites Fenster in den alten Scheunenraum mit Bruchsteinwand. Ein Blick durch dieses zweite Fenster offenbart die Überlagerung der verschiedenen Zeitschichten, die in dem Projekt miteinander verwoben werden.