









Axonometrie Bestand und Aufstockung
Perspektive Aufstockung
Lageplan
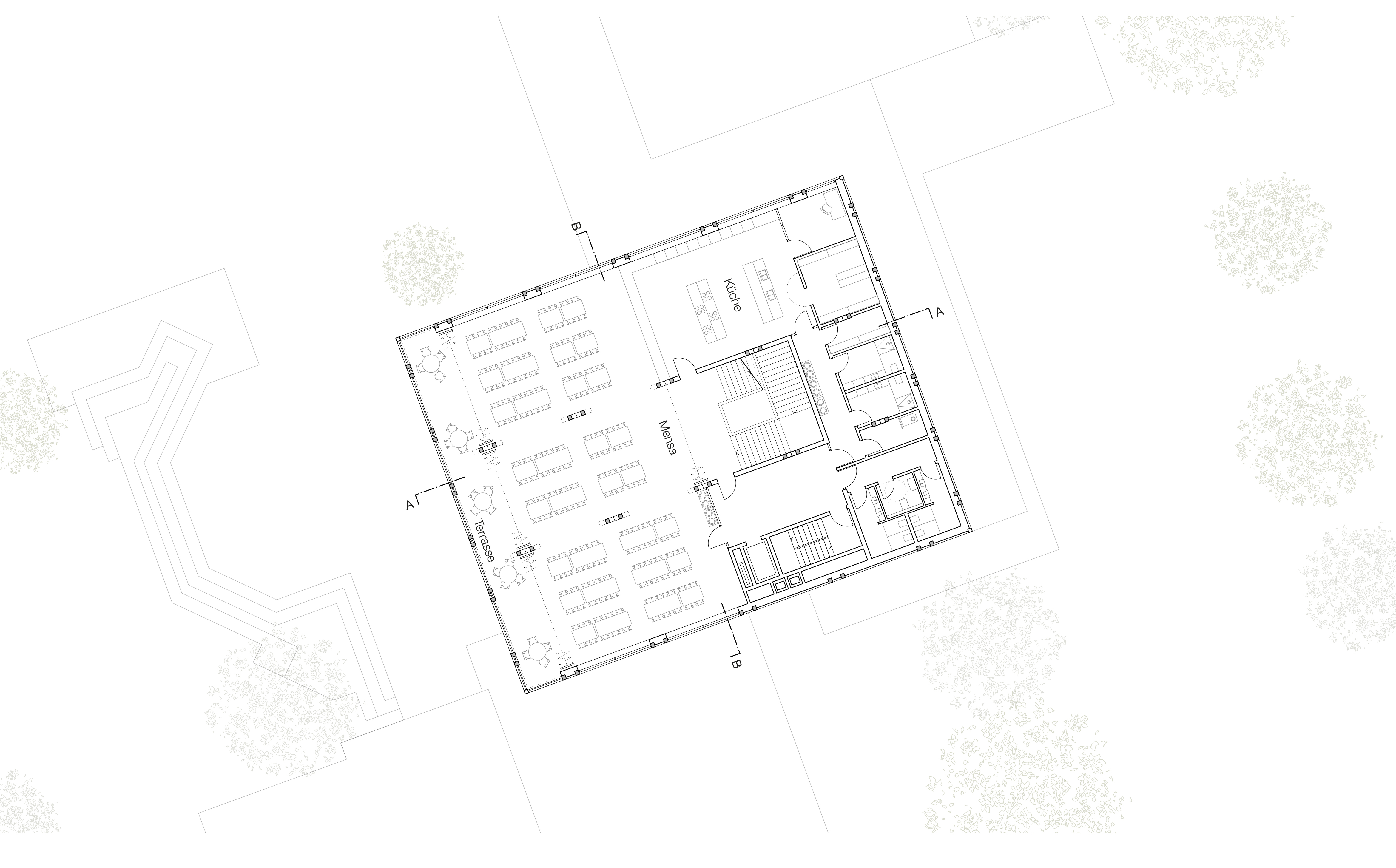
Grundriss Erdgeschoss
Grundriss 1. Obergeschoss Aufstockung
Grundriss 2. Obergeschoss Aufstockung
Schnitt
Foyer Bestand I Neuer Aufgang zur Aufstockung
Mensa mit Außenterrasse
Detailschnitt
ERWEITERUNG SCHULHAUS BUECHHOLZ
Die geplante Erweiterung des Schulhaus Buechholz wird zu einem neuen Zentrum und Begegnungsort innerhalb des Schulkomplexes. Ein ausdrucksstarker Baukörper oberhalb der bestehenden, eingeschossigen Aula ergänzt das bauliche Ensemble auf sinnvolle Weise. Dem Schulhaus A von Marti und Kast wird ein zweiter Hochpunkt gegenübergestellt, der dem Pausenplatz eine angemessene räumliche Einfassung gibt und sich harmonisch in die Topographie des Geländes und der bestehenden Lernlandschaft einfügt.
Eine neue helle Treppenanlage verbindet das Foyer der Bestands-Aula mit dem Anbau und führt die Schüler*innen direkt in den grosszügigen und gut belichteten Speisesaal mit Aussenterrasse und Blick über den Zürichsee. Im 2. Obergeschoss befindet sich ein flexibel nutzbares Lerncluster.
Die Aufstockung schwebt, abgesetzt durch eine leichte Schattenfuge, über dem markanten Stahlbetonband, welches die Fassade der Aula prägt. Das neue Primärtragwerk ist als Stahlfachwerk konzipiert und prägt sowohl die Innenräume als auch die Fassade des Entwurfs. Durch das gewählte Tragwerkskonzept findet eine Lastabtragung ausschliesslich ausserhalb der Gebäudehülle des Bestandsgebäudes über bestehende und neue Stützen statt. So wird eine konstruktive Unabhängigkeit vom Bestand angestrebt und komplizierte bautechnische Schnittpunkte vermieden.
Das Primärtragwerk besteht aus doppelgeschossigen Fachwerkträgern in Stahlbauweise, die durch ihre statische Höhe eine grosse Spannweite ermöglichen. Die Fachwerkträger werden umlaufend an jeder Gebäudeseite zu einem Kubus verbunden, gleichzeitig laufen zwei weitere Träger längs durch das Gebäude. Die Stahlträger, die durch die Gebäudemitte laufen prägen das Innenraumbild und machen das Tragwerk im gesamten Gebäude ablesbar. So werden die grossen Träger beispielsweise in der Mensa als V-Stützen sichtbar und strukturieren den Raum auf eine spannungsvolle Art.
Zwischen den Fachwerkträgern entstehen nun vergleichsweise geringe Spannweiten von circa 6.60 Meter, die mit einer Holzbalkenlage überspannt werden. Die Aussenwände werden als Holzrahmenbau ausgeführt. Diese vorgeschlagene Verbindung von Stahl- und Holzbau ermöglicht eine nachhaltige Baukonstruktion aus natürlichen Materialien. Es werden keine Verbundwerkstoffe eingesetzt. Die verwendeten Bauteile sind demontierbar, weisen regelmässige und immer gleiche Bauteilgrössen auf und können so sehr gut wiederverwendet und erneut dem Kreislauf zugeführt werden.










Axonometrie Bestand und Aufstockung
Perspektive Aufstockung
Lageplan
Grundriss Erdgeschoss
Grundriss 1. Obergeschoss Aufstockung
Grundriss 2. Obergeschoss Aufstockung
Schnitt
Foyer Bestand I Neuer Aufgang zur Aufstockung
Mensa mit Außenterrasse
Detailschnitt
ERWEITERUNG SCHULHAUS BUECHHOLZ
Die geplante Erweiterung des Schulhaus Buechholz wird zu einem neuen Zentrum und Begegnungsort innerhalb des Schulkomplexes. Ein ausdrucksstarker Baukörper oberhalb der bestehenden, eingeschossigen Aula ergänzt das bauliche Ensemble auf sinnvolle Weise. Dem Schulhaus A von Marti und Kast wird ein zweiter Hochpunkt gegenübergestellt, der dem Pausenplatz eine angemessene räumliche Einfassung gibt und sich harmonisch in die Topographie des Geländes und der bestehenden Lernlandschaft einfügt.
Eine neue helle Treppenanlage verbindet das Foyer der Bestands-Aula mit dem Anbau und führt die Schüler*innen direkt in den grosszügigen und gut belichteten Speisesaal mit Aussenterrasse und Blick über den Zürichsee. Im 2. Obergeschoss befindet sich ein flexibel nutzbares Lerncluster.
Die Aufstockung schwebt, abgesetzt durch eine leichte Schattenfuge, über dem markanten Stahlbetonband, welches die Fassade der Aula prägt. Das neue Primärtragwerk ist als Stahlfachwerk konzipiert und prägt sowohl die Innenräume als auch die Fassade des Entwurfs. Durch das gewählte Tragwerkskonzept findet eine Lastabtragung ausschliesslich ausserhalb der Gebäudehülle des Bestandsgebäudes über bestehende und neue Stützen statt. So wird eine konstruktive Unabhängigkeit vom Bestand angestrebt und komplizierte bautechnische Schnittpunkte vermieden.
Das Primärtragwerk besteht aus doppelgeschossigen Fachwerkträgern in Stahlbauweise, die durch ihre statische Höhe eine grosse Spannweite ermöglichen. Die Fachwerkträger werden umlaufend an jeder Gebäudeseite zu einem Kubus verbunden, gleichzeitig laufen zwei weitere Träger längs durch das Gebäude. Die Stahlträger, die durch die Gebäudemitte laufen prägen das Innenraumbild und machen das Tragwerk im gesamten Gebäude ablesbar. So werden die grossen Träger beispielsweise in der Mensa als V-Stützen sichtbar und strukturieren den Raum auf eine spannungsvolle Art.
Zwischen den Fachwerkträgern entstehen nun vergleichsweise geringe Spannweiten von circa 6.60 Meter, die mit einer Holzbalkenlage überspannt werden. Die Aussenwände werden als Holzrahmenbau ausgeführt. Diese vorgeschlagene Verbindung von Stahl- und Holzbau ermöglicht eine nachhaltige Baukonstruktion aus natürlichen Materialien. Es werden keine Verbundwerkstoffe eingesetzt. Die verwendeten Bauteile sind demontierbar, weisen regelmässige und immer gleiche Bauteilgrössen auf und können so sehr gut wiederverwendet und erneut dem Kreislauf zugeführt werden.