



















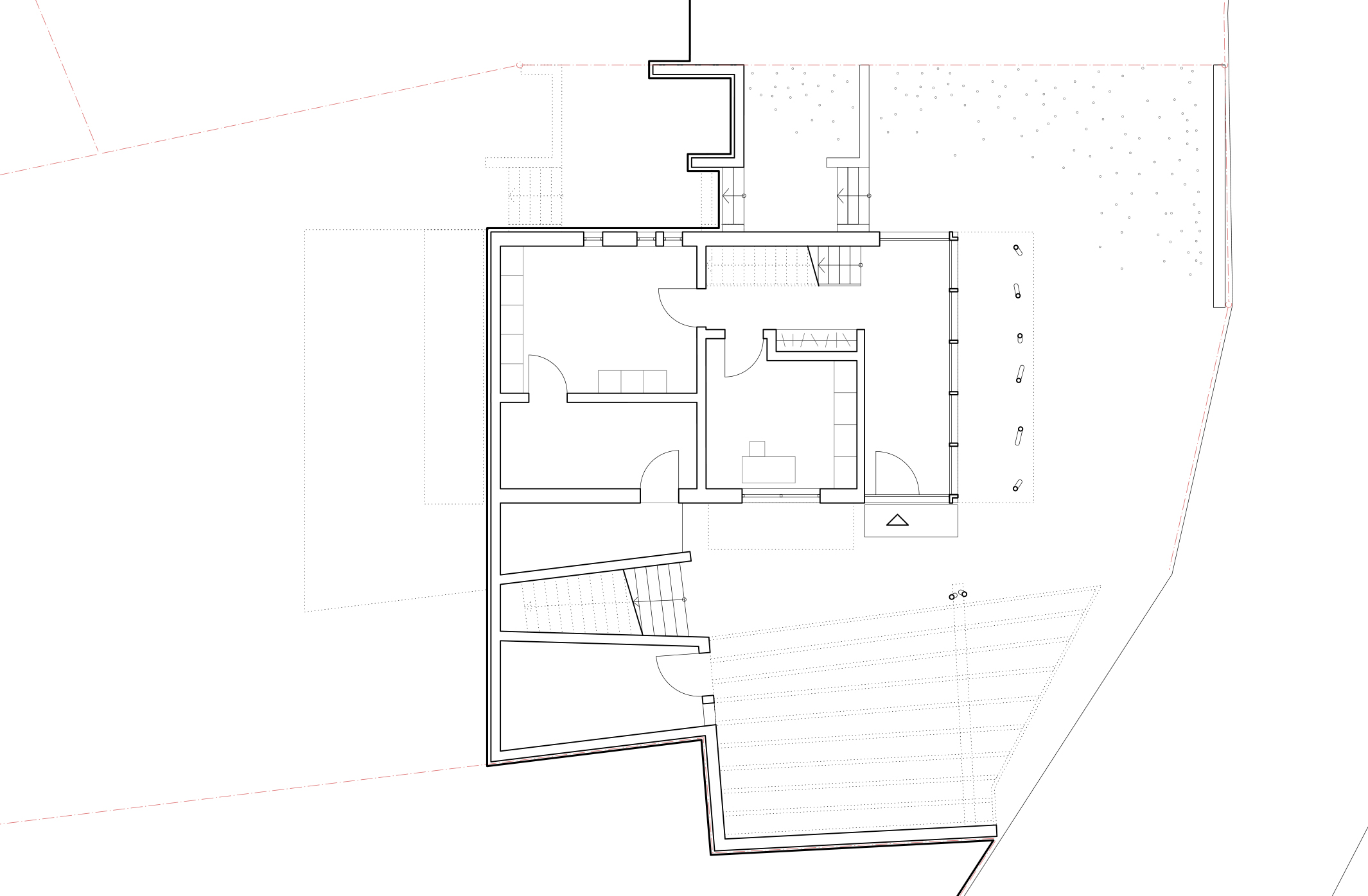
Grundriss Straßenniveau
Grundriss Gartenniveau
Grundriss Dachgeschoss
Ansicht Südost
Ansicht Südwest
Ansicht Nordwest
Ansicht Nordost
HAUS D+J
Das Haus befindet sich im historischen Ortskern der Gemeinde Mömbris bei Aschaffenburg. Das Grundstück mit einer anspruchsvollen Topografie schließt auf der einen Seite an eine enge und steile Straße - einen alten Hohlweg – an. Auf der anderen Seite öffnet es sich nach Westen hin zur Landschaft. In Richtung des hinteren Grundstücksteils steigt das natürliche Gelände um circa 3 Meter und bildet einen geschützteren Gartenbereich.
Der Entwurf nutzt diesen vorhandenen Geländeverlauf und das Geschoss auf Straßenniveau fügt sich in das natürlich steigende Gelände ein. Im belichteten Teil ensteht hier ein heller Bereich zum Ankommen, sowie ein Büro. Im unbelichteten Teil des Geschosses befinden sich Keller- und Abstellräume.
Nach Betreten des Hauses führt eine Treppe nach oben, wo sich das Wohngeschoss als offener Grundriss zum geschützten Gartenbereich hin orientiert. Im Dachgeschoss befinden sich die Schlafzimmer. Das Kellergeschoss aus Stahlbeton und Glas wirkt zur Straße hin fast völlig transparent, sodass die Obergeschosse, die als Holzmassivbaukonstruktion ausgeführt wurden, auf den schräg gestellten Aluminiumstützen zu schweben scheinen. Die Ansicht ist reduziert, Regenrinnen sind in die Dachfläche integriert und Akzente in der Fassade entstehen durch die zwei hervorspringenden Erkerfenster, die in Längsrichtung den Essbereich und den Treppenaufgang mit Licht füllen. Zum Garten im hinteren Grundstücksteil öffnet sich das Haus vollständig durch eine Glasfassade mit Schiebeelementen. Dem Haus vorgestellt ist ein Balkon, der in seiner Gestaltung als Teil des Hauses wahrgenommen wird und die großen Glasflächen vor Regen und Sonne schützt.




















Grundriss Straßenniveau
Grundriss Gartenniveau
Grundriss Dachgeschoss
Ansicht Südost
Ansicht Südwest
Ansicht Nordwest
Ansicht Nordost
HAUS D+J
Das Haus befindet sich im historischen Ortskern der Gemeinde Mömbris bei Aschaffenburg. Das Grundstück mit einer anspruchsvollen Topografie schließt auf der einen Seite an eine enge und steile Straße - einen alten Hohlweg – an. Auf der anderen Seite öffnet es sich nach Westen hin zur Landschaft. In Richtung des hinteren Grundstücksteils steigt das natürliche Gelände um circa 3 Meter und bildet einen geschützteren Gartenbereich.
Der Entwurf nutzt diesen vorhandenen Geländeverlauf und das Geschoss auf Straßenniveau fügt sich in das natürlich steigende Gelände ein. Im belichteten Teil ensteht hier ein heller Bereich zum Ankommen, sowie ein Büro. Im unbelichteten Teil des Geschosses befinden sich Keller- und Abstellräume.
Nach Betreten des Hauses führt eine Treppe nach oben, wo sich das Wohngeschoss als offener Grundriss zum geschützten Gartenbereich hin orientiert. Im Dachgeschoss befinden sich die Schlafzimmer. Das Kellergeschoss aus Stahlbeton und Glas wirkt zur Straße hin fast völlig transparent, sodass die Obergeschosse, die als Holzmassivbaukonstruktion ausgeführt wurden, auf den schräg gestellten Aluminiumstützen zu schweben scheinen. Die Ansicht ist reduziert, Regenrinnen sind in die Dachfläche integriert und Akzente in der Fassade entstehen durch die zwei hervorspringenden Erkerfenster, die in Längsrichtung den Essbereich und den Treppenaufgang mit Licht füllen. Zum Garten im hinteren Grundstücksteil öffnet sich das Haus vollständig durch eine Glasfassade mit Schiebeelementen. Dem Haus vorgestellt ist ein Balkon, der in seiner Gestaltung als Teil des Hauses wahrgenommen wird und die großen Glasflächen vor Regen und Sonne schützt.